Dàn Lạnh Âm Trần Điều Hòa Trung Tâm Panasonic S-280ME1E5 95,500BTU 2 Chiều
S-280ME1E5 là dàn lạnh âm trần nối ống gió áp suất cao thuộc hệ điều hòa trung tâm Panasonic loại E1. Công suất làm lạnh 95,500BTU và sưởi ấm 107,500BTU. Hàng sẵn kho, liên hệ Mr Điều Hòa để được báo giá bán buôn tốt nhất.
1. Thông số kỹ thuật dàn lạnh âm trần điều hòa trung tâm S-280ME1E5
| Model | S-280ME1E5 |
| Nguồn điện | 1 pha, 220/230/240V, 50/60Hz |
| Công suất làm lạnh | 28.0kW ~ 95,500BTU |
| Công suất sưởi ấm | 31.5kW ~ 107,500BTU |
| Công suất điện làm lạnh / sưởi ấm | 1.27/1.33/1.390kW |
| Dòng điện làm lạnh / sưởi ấm | 6.04/6.06/6.07A |
| Động cơ quạt | lồng sóc |
| Lưu lượng gió | 4,320/4,200/3,960m3/h |
| Công suất quạt | 0.4kW |
| Cột áp | 216Pa |
| Độ ồn | 51/50/49dBA |
| Kích thước | 479×1,428×1,230mm |
| Ống kết nối lỏng / hơi | Ø9.52mm/Ø22.22mm |
| Ống nước ngưng | VP-25 |
| Khối lượng | 120kg |
Chú ý:
| Điều kiện tiêu chuẩn | Làm lạnh | Sưởi ấm |
| Nhiệt độ không khí trong phòng | 27oC DB / 19oC WB | 20oC DB |
| Nhiệt độ không khí ngoài trời | 35oC DB / 24oC WB | 7oC DB / 6oC WB |
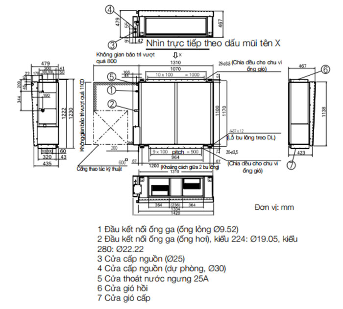
Kích thước chi tiết dàn lạnh âm trần nối ống gió áp suất cao máy trung tâm Panasonic S-280ME1E5

Kích thước của dàn S-280ME1E5
2. Các tính năng chính của dàn lạnh âm trần nối ống gió trung tâm S-280ME1E5
– Tự chuẩn đoán;
– Chế độ quạt tự động;
– Hút ẩm;
– Tự động khởi động lại.
3. Đặc tính kỹ thuật của dàn lạnh âm trần nối ống gió trung tâm S-280ME1E5
– Thiết kế ống gió linh hoạt. Có thể lắp đặt bên ngoài không gian làm lạnh. Kiểm soát nhiệt độ gió cấp để tránh hiện tượng thổi gió lạnh trong quá trình sưởi. Kiểm soát nhiệt độ theo cầu hình cài đặt.
– Bắt buộc phải có 1 cửa thăm (tối thiểu 450x450mm) tại vị trí phía dưới dàn lạnh S-280ME1E5.

Hệ thống minh họa
– Kiểm soát nhiệt độ không khí: Trang bị 4 cảm biến (Hút / Đẩy); Kiểm soát nhiệt độ gió cấp cho nhiệt độ cài đặt phòng chính xác; Tránh thổi gió lạnh khi hoạt động chế độ sưởi ấm.

Kiểm soát nhiệt độ không khí từ dàn lạnh S-280ME1E5
– Phụ kiện

Phụ kiện cho dàn lạnh S-280ME1E5
– Điều khiển từ xa có dây cao cấp: Màn hình LCD 3.5′ với đèn LED màu trắng. Màn hình điều khiển rộng, cung cấp nhiều thông tin điều khiển trực quan, dễ dàng điều chỉnh các thông số vận hành.
– Thiết kế dễ sử dụng và sang trọng: Nút bấm được thiết kế lớn hơn, phẳng và tao nhã giúp cho việc sử dụng được dễ dàng và trực quan hơn.

Điều khiển từ xa có dây cao cấp cho dàn lạnh S-280ME1E5
Liên hệ với chúng tôi:
Nhà phân phối và nhập khẩu điều hòa
Công ty cổ phần thương mại kỹ thuật TS Việt Nam
- Địa chỉ: 150 Đặng Văn Ngữ - Phú Nhuận - Hồ Chí Minh
- Số điện thoại : 0983758723
- Email : mrdieuhoa@gmail.com
- Website : mrdieuhoa.com

