Điều Hòa Trung Tâm Panasonic mini FSV U-5LE2H4 5HP 2 chiều
U-5LE2H4 là dàn nóng 2 chiều điều hòa trung tâm Panasonic hệ mini FSV. Công suất làm lạnh 47,800BTU, công suất sưởi ấm 54,600BTU. Chỉ cần duy nhất 1 dàn nóng U-5LE2H4 có thế kết nối tối đa 8 dàn lạnh. Khi dàn nóng được lắp đặt và hoạt động trên khu vực diện tích hẹp, dưới trời nắng, nhiệt độ không khí xung quanh dàn nóng sẽ bị tích lũy gây ra hiện tượng quá nhiệt. Điều này sẽ ảnh hưởng đến tuổi thọ của hệ thống. Với cột áp quạt giải nhiệt được nâng cao tới 35Pa, gió giải nhiệt sẽ được thổi xa hơn, giảm hiện tượng quẩn nhiệt khu vực dàn nóng U-5LE2H4.
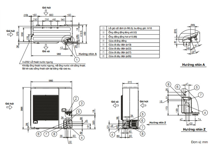
1. Thông số kỹ thuật dàn nóng trung tâm mini FSV U-5LE2H4
| Model | U-5LE2H4 |
| Nguồn điện | 1 pha, 220/230/240V, 50Hz 1 pha, 220/230, 60Hz |
| Điện áp | 220V | 230V | 240V |
| Công suất làm lạnh | 14.0kW ~ 47,800BTU |
| Công suất sưởi ấm | 16.0kW ~ 54,600BTU |
| EER/COP làm lạnh / sưởi ấm | 4.61/5.24W/W |
| Kích thước | 996x980x370mm |
| Khối lượng | 106kg |
| Công suất điện tiêu thụ làm lạnh | 15.20A | 14.50A | 13.90A 3.04kW | 3.04kW | 3.04kW |
| Công suất điện tiêu thụ sưởi | 15.20A | 14.50A | 14.0A 3.05kW | 3.05kW | 3.05kW |
| Dòng khởi động | 1A |
| Lưu lượng gió | 72m3/min |
| Lượng ga R410A nạp sẵn | 6.70kg |
| Ống kết nối hơi / lỏng | Ø15.88mm/Ø9.52mm |
| Phạm vi vận hành | Chiều lạnh -10oCDB~+46oCDB Chiều sưởi -20oCWB~+18oCWB |
| Độ ồn | Chế độ thường 53dBA Chế độ im lặng 46dBA |
| Chú Ý | |
| Điều kiện tiêu chuẩn | Làm lạnh: 27oC DB / 19oC WB Sưởi: 20oC DB |
| Điều kiện tiêu chuẩn sưởi | 20oC DB |
| Nhiệt độ không khí ngoài trời | Làm lạnh: 35oC Sưởi: 7oC DB / 6oC WB |
Thông số kỹ thuật dàn nóng U-5LE2H4

2. Đặc điểm dàn nóng điều hòa trung tâm Panasonic Mini FSV U-5LE2H4
– Với cột áp quạt được nâng cao tới 35Pa, gió giải nhiệt được thổi xa hơn, tránh hiện tượng quẩn nhiệt. Loại quạt mới có khung sườn rộng hơn gần đầu cánh quạt. Trong quá trình dàn nóng hoạt động, áp suất tĩnh điện cao, hình dạng cánh kiểu này giúp ngăn chặn sự gián đoạn trong luồng gió giải nhiệt và cột áp quạt 35PA giúp đẩy luồng gió nóng ra xa hơn.

Cột áp quạt giải nhiệt lớn 35Pa
Chiều dài đường ống lớn phù hợp với nhiều kích cỡ kiểu nhà

Nạp ga sẵn cho 50m ống đồng. Với công trình có đường ống đồng không vượt quá 50m thì không cần nạp ga bổ sung. Điều này giúp thuận tiện và tiết kiệm chi phí trong thiết kế và thi công.

Thiết kế nhỏ gọn. So với điều hòa cục bộ, hệ thống mini FSV là giải pháp tối ưu cho bài toán tiết kiệm không gian đặt dàn nóng. Model U-5LE2H4 chiều cao chỉ 996mm phù hợp cho mọi không gian, kể cả những không gian hẹp.

Dàn nóng trung tâm Panasoni U-5LE2H4 nhỏ gọn
Nâng cao hiệu suất vận hành thông qua việc sử dụng môi chất lạnh ga R410A, máy nén biến tần DC và thiết kế dàn trao đổi nhiệt tối ưu.

Dàn nóng U-5LE2H4 hiệu suất cao
Thiết kế tiết kiệm điện năng: Trang bị 1 máy nén biến tần công suất lớn và hiệu quả cao khi hoạt động trong chế độ tải từng phần. Thiết kế bo mạch 2 phần giúp quá trình bảo dưỡng, sửa chữa đơn giản hơn. Bình tách lỏng giúp duy trì độ ổn định, tin cậy của máy nén khi lượng ga tăng lên và giúp mở rộng tối đa chiều dài đường ống đồng. Thông qua việc kiểm tra tải, nhiệt độ bên ngoài, động cơ DC điều chỉnh lưu lượng gió giải nhiệt phù hợp. Cánh quạt được thiết kế mới để hạn chế sự nhiễu động của không khí và nâng cao hiệu quả hoạt động. Đường kính quạt được mở rộng giúp tăng lưu lượng gió giải nhiệt mà không làm tăng độ ồn hoạt động. Dàn trao đổi nhiệt được thiết kế mới cả về kích thước dàn, kích cỡ ống giúp nâng cao hiệu quả trao đổi nhiệt. Sử dụng bình tách dầu kiểu ly tâm giúp cải thiện hiệu quả tách dầu và giảm tổn thất áp suất ga.

Linh hoạt với phụ kiện cầu đấu điện: Với công nghệ điều khiển biến tần, hệ thống mini FSV của Panasonic đều trang bị chức năng quản lý hoạt động như ý (DRM). Với chức năng này, điện năng tiêu thụ lúc cao điểm có thể được kiểm soát theo ba bước giúp duy trì hoạt động tối thiểu của hệ thống và giảm tiêu thụ điện năng.
Phụ kiện quản lý hoạt động như ý CZ-CAPDC2: Có thể cài đặt ở mức 0% hoặc trong dải từ 40-100% (mỗi bước 5%). Tại thời điểm ban đầu, hệ thống được thiết lập sẵn cho ba bước 0%, 70% và 100%.

Dải nhiệt độ vận hành rộng: Dải nhiệt độ hoạt động chiều lạnh: -10oC ~ 46oC, dải nhiệt độ vận hành chiều sưởi: -20oC ~ 18oC. Nhiệt độ cài đặt trên điều khiển: chiều lạnh (18~30oC), chiều sưởi (16~30oC).
Dàn trao đổi nhiệt được sơn phủ lớp chống ăn mòn để chống lại quá trình gỉ sét và không khí mặn, để đảm bảo hiệu quả làm việc lâu dài.

Chế độ hoạt động yên tĩnh giảm độ ồn hoạt động của dàn nóng xuống 7dB so với độ ồn định mức. Có 3 mức cài đặt chế độ hoạt động yên tĩnh. Có khả năng tiếp nhận tín hiệu ngoại vi.
Quý khách có thể tham khảo thêm các dàn nóng khác tại danh mục điều hòa trung tâm Panasonic.
Liên hệ với chúng tôi:
Nhà phân phối và nhập khẩu điều hòa:
Công ty TNHH thương mại đầu tư Tân Đại Phát
-
- Địa chỉ trụ sở chính : số 7 Phan Trọng Tuệ , Xã Thanh Trì , Thành phố Hà Nội
- Địa chỉ chi nhánh Hồ Chí Minh : 150A Đặng Văn Ngữ , Phường Phú Nhuận , Thành phố Hồ Chí Minh
- Số điện thoại : 0962755755 - 0983758723
- Email : mrbomnhiet@gmail.com
- Website : MrBomNhiet.Com

