Dàn Nóng Điều Hòa Trung Tâm Panasonic mini FSV U-8LE1H7 8HP 2 Chiều Inverter

Giá bán: Liên hệ

– Kết nối tối đa 11 dàn lạnh.

– Công suất làm lạnh / sưởi ấm: 76,500BTU / 85,300BTU

– COP làm lạnh / sưởi ấm: 4.20/4.52W/W

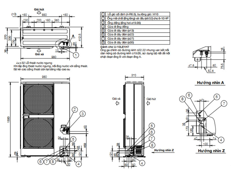
– Kích thước: 1,500x980x370mm

– Trọng lượng: 132kg

– Lưu lượng gió: 150m3/min

– Lượng ga R410A nạp sẵn: 6.30kg

– Ống kết nối hơi / lỏng: Ø19.05/Ø9.52mm

Gọi ngay: 0983.758.723 (Để được tư vấn mua hàng)
Danh mục: